Mypolonga sporting clubs celebrate $500,000 windfall
Now work can begin on a new canteen and changerooms at the small-town football, netball, cricket and tennis club – and Callington's oval has got some funding, too.
Stories create community – that’s why this recent story is now free to read. You can help Murray Bridge News tell our community’s stories by subscribing today.

It’s the sort of phone call you don’t mind waking up to at 6.14am on a Saturday.
That was when, on February 24, Courtney Blacker learned Mypolonga’s sporting clubs had won a grant worth half a million dollars.
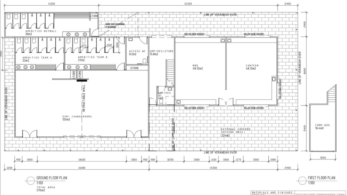
The cash from the state Office for Recreation and Sport will allow the town’s football, netball, cricket and tennis clubs to build the new changerooms and canteen they have so desperately needed.
As Murray Bridge News reported in 2022, the 40-year-old facilities at Mypolonga Memorial Oval were severely lacking.
For example, 100 netballers had to make do with just one shower.
At a time when other small-town sporting clubs around the Murraylands were on the verge of folding, the problem was enough to set off alarm bells at Tigerland.
“We have to be attractive to families and future players coming to our club, otherwise we’re the next Mallee side that’s merging, which we don’t want to be,” Mr Stewart said.

A merger or closure wouldn’t have been fair to the wave of families who had moved to Mypo in recent years, said Ms Blacker, the netball club’s grants officer.
“From a netball perspective, although we’re in the middle of nowhere, we’ve got the biggest numbers of any club in the league, and we’re the most successful,” she said.
“We’re knocking back families all the time because we physically don’t have the room in teams for them, which is a great problem to have.
“We want to make sure that the facilities are great so that families keep wanting to come here.”
The new facility will not only replace the changerooms, canteen and time keeper’s box.
It will also add unisex and accessible toilets, extra viewing areas for both football on one side and netball on the other, and potentially – through the use of moveable internal walls – a meeting space which could be made available for community use.



The clubs collected 78 letters of support from different organisations to bolster their cause, including drawings and pieces of writing by students at Mypolonga Primary School.
They also secured $50,000 from the Murray Bridge council and $100,000 in community donations and pledges – many from people or companies that already sponsored Mypo’s sporting teams.
Combined with $220,000 the clubs had saved for just this sort of project, through sausage sizzles and other fundraisers, it will be enough to get the job done.
Another federal government grant, not yet announced, could yet super-size the project with a new playground, an extra netball court and new lights for the oval.
That would add to the supporters’ caravan, new scoreboard and second training oval the clubs had established over the past few years.
Mr Stewart dreamed of hosting a SANFL game or an AFL Gather Round match at Mypo down the track, given the oval’s scenic rural outlook.
But for now, the black and gold army is ready to get to work.
The clubs hope to have the new building completed by the end of this year.
- Read more: “100 netballers and one shower”: Why Mypolonga’s sporting clubs need a $1 million upgrade
Callington Oval will also get new lights
Meanwhile, another Murraylands community will also benefit from the state Community Recreation and Sporting Facilities Program funding announced on February 24.
Callington Recreation Grant won $100,000 worth of funding for new LED light towers at the town’s main oval.
State Recreation, Sport and Racing Minister Katrine Hildyard congratulated all funding recipients.
“By upgrading and developing local sporting clubs and recreation facilities, more members of the community can come together to connect, be active and enjoy a sense of belonging,” she said.
“This investment … will play an important role in improving the physical, mental and emotional wellbeing of South Australians, and enable more people to access inclusive places and spaces.”